图知网
搜索
首页
热门推荐
图片分类
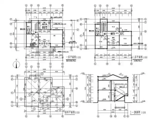
二层砖混结构别墅建筑施工图(含结构图)免费下载 - 别墅图纸 - 土木
下载原图
相关图片
别墅图纸编号:dc1152,砖混结构,开间12米,进深14米,占地面积162.
二层小型别墅砖混结构施工图(cad)
260平米2层砖混结构单体别墅平立剖面设计cad图纸含阁楼层
图纸详情 层数: 二层 结构形式:砖混结构 开间:11.76米 进深:10.
某农村两层砖混结构住宅楼建筑设计施工图_cad图库 -建库图纸
某地二层砖混结构别墅建筑方案设计图_cad图库 -建库图纸
为你推荐
月中污萌趣(情侣)头像,背景,找不到喜欢的算我输!
【福利】白露锁屏壁纸来啦,有要的小伙伴来取吧_联想锁屏-联想社区
山间小路风景简笔画
jpg颜色:cmyk5共享分举报收藏立即下载关 键 词:小莲 小红花 有卡通
高架衣架挂衣服简笔画
哈咪猫表情赞
(图:顾艳在居家隔离办公)
送礼麻辣零食大礼包礼盒整箱混装休闲零食100包节日生日礼物