图知网
搜索
首页
热门推荐
图片分类
帅气的史努比壁纸图片
下载原图
相关图片
史努比
史努比壁纸
史努比卡通剪纸
iphonex/xs适用 卡通 史努比
史努比
史努比系列壁纸1
为你推荐
拥抱团队图片
70年,扎西德勒!
.
军兴猎鱼弓 捕鱼弓直拉弓 体育健身弓箭 景区户外射击弓箭
upsfedex和dhl快递运输快递费暴涨
old catholic confederation
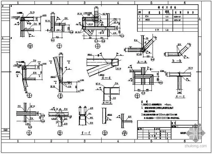
[分享]某钢结构大样节点构造详图资料免费下载
helen wells 的水彩纹样设计 helenwellsartist.com