图知网
搜索
首页
热门推荐
图片分类
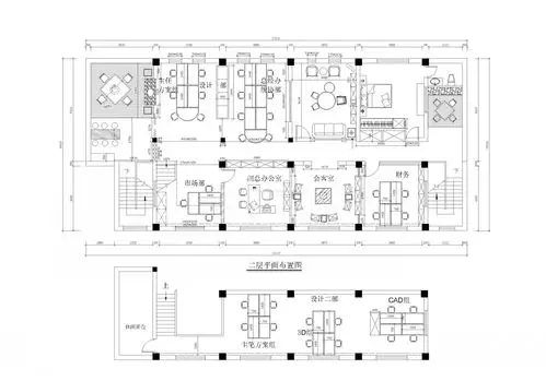
【待完善】六百平米服装办公室平面布局
下载原图
相关图片
600平其他装修效果案例-跨贸小镇,茂逊办公室装修实景图赏析-土巴兔
丨600平米服装办公室 展厅设计,衣装创意潜力无限
总经理办公室方案01-sm
50万800平米现代办公空间装修效果图,现代风格办公空间设计装修案例
办公空间800平米装修案例_效果图 - 杭州办公室 - 设计本
公司二层办公室cad平面图
为你推荐
脏橘色配短发时尚又有个性干练,让夏天更凉爽
设计感连帽工装马甲.宝子们,设计感工装马甲,可穿到150斤, - 抖音
少女前线!精选壁纸~ hk416特辑
小心超人看这里78
有没有好看的京剧脸谱壁纸
邓丽君下葬全过程和罕见照片曝光你可能没见过
用手掌就可以完成的创意绘画!
快艾特你男朋友给你拍#手势 #love #情侣