图知网
搜索
首页
热门推荐
图片分类
海参牡蛎 液体饮料
下载原图
相关图片
海参牡蛎是干什么的?
健戈海参牡蛎全国统一价格究竟一盒好多钱
牡蛎片,就选海参蚕蛹黑松露众所周知,海参与牡蛎都对男人有极大的好处
独狼海参牡蛎多少钱||$ 一般价格是多少 不看后悔>>
海参加牡蛎更营养呦 !
牡蛎 海参能碰撞出什么样的火花呢!
为你推荐
电影历史大课堂|中国电影博物馆.==|72|打卡体验|92|= - 抖音
步骤2:然后,我们在素描纸上用铅笔勾勒出鱼的造型.
350_188gif 动态图 动图
客户名单第一季
2022冬奥会logo
美在花海中
改装一辆面包车开启无限次露营模式72
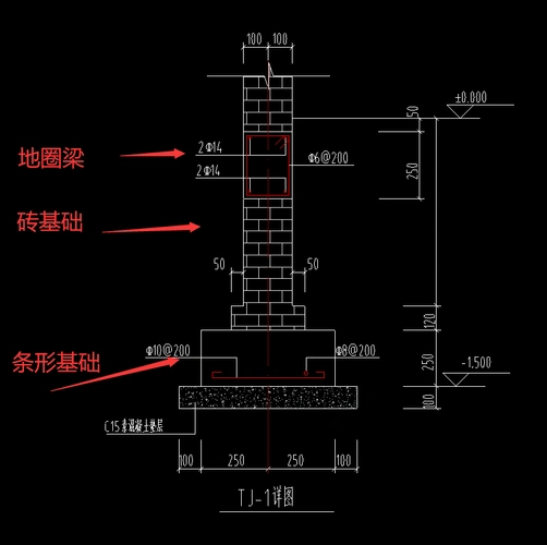
求教条形基础的问题