图知网
搜索
首页
热门推荐
图片分类
输送带皮带扣a3四六钉高强度接头扣传输带v6连体扣皮带卡子连接扣 v6
下载原图
相关图片
输送带皮带扣dk810型皮带扣橡胶传送带连接扣u型皮带扣
f6皮带连体扣输送带皮带扣高强度连接扣传送皮带接头扣夹整体钉扣
1000型皮带扣712型矿用输送带卡扣高强度带扣
矿用输送带皮带连接扣爬坡带平板扣皮带夹大破皮带夹板厦门直销
su1000皮带扣输送机皮带扣矿用输送带扣7-12mm皮带扣
输送带皮带扣dk810型皮带扣橡胶传送带连接扣u型皮带扣
为你推荐
景甜整容失败成悲伤蛙埋线双眼皮到底值不值得做
日系短发合集
经典再现永葆青春记河北省河北梆子剧院青春版蝴蝶杯
卡通花草春天素材
卡通人物半身像分割线卡通创意自我介绍展板模板
表白心动文字
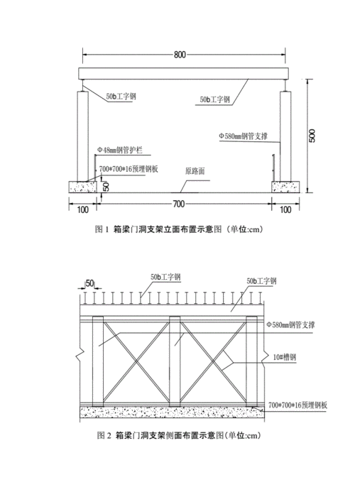
门洞支架搭设专项方案(通用).pdf 10页
一个以红宫廷为主的60草缸