图知网
搜索
首页
热门推荐
图片分类
围墙怎么做
下载原图
相关图片
22围墙结构图
看房围墙
围墙基础
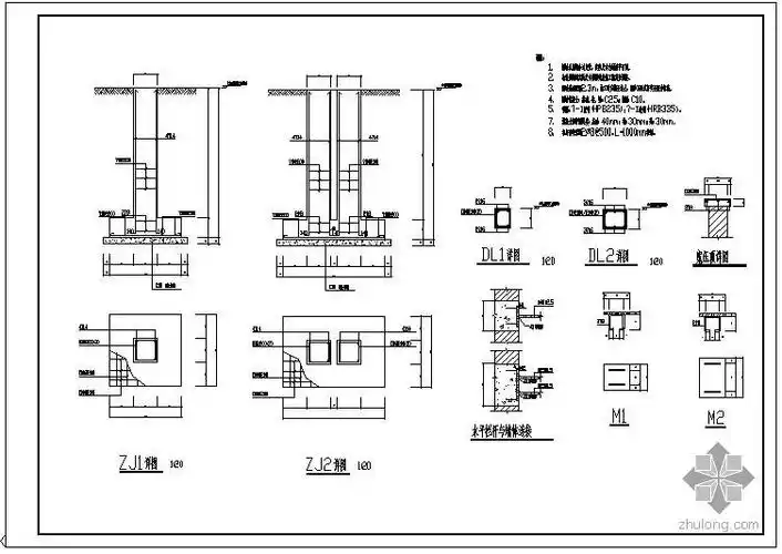
某围墙建筑及结构节点构造详图
我想问一下这个围墙的工程量怎么计算呀配筋图怎么对应不上呀电动门
围墙基础
为你推荐
新石器时代红山文化玉玦形龙辽宁省博物馆藏
要看点清凉的肌肉92降降温,冷白皮的肌肉线条好漂亮@张艺兴#张艺兴
看了香港演员戴眼镜突然明白了什么叫斯文败类
有一种表白,叫"我爱你中国"有一种骄傲,叫"五星红旗"有一种感动,叫"
拖拉机结构分解图,拖拉机前桥三维结构图-图片大观-奇异网
5250蓝发少年动漫头像5250
72图片如何转jpg超简单的方法来了
赵丽颖又一部悬疑大剧来袭阵容太惊喜辛芷蕾都甘愿作配