图知网
搜索
首页
热门推荐
图片分类
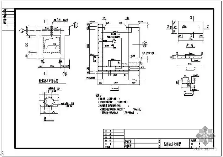
07sd1018电力电缆井设计与安装
下载原图
相关图片
07sd1018电力电缆井设计与安装
电缆井设计图
[分享]弱电防爆波电缆井资料免费下载
小型电缆手孔应该井套那种检查井
请问人防图中的防爆电缆井该怎么去设置-答疑解惑-广联达服务新干线
低压电缆井
为你推荐
只有保持内心安静,人生才能淡然从容
如懿传卫嬿婉结局悲惨十五阿哥被立为皇储却跟她没关系扎心
ins极简风人物线条设计简约手绘插画简笔画logo情侣头像定制diy
奥迪a6l改bo音响奥迪a6l改装全车bo音响
导览图
[英魂之刃] 孙尚香 仙灵绿柳 原画重置
皮托管的结构原理及应用.pdf 3页
【小花仙】千韩