图知网
搜索
首页
热门推荐
图片分类
利用cad软件设计绘制寝室平面图以及设计宣传海报等形式,宣传了安全
下载原图
相关图片
首先来张平面图压压惊
萌新必看师兄师姐们把这些选宿舍经验献给你们
中国36所双一流大学宿舍曝光哪所最让你心动
[分享]大学宿舍课程设计资料下载
远方的家 | 圣路易斯大学学生宿舍[slu]
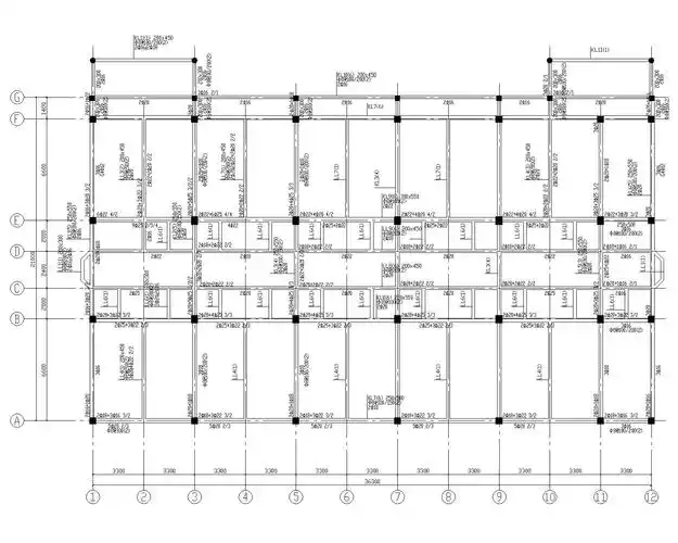
6层学生宿舍平面图资料下载-某四层学生宿舍楼混凝土结构施工图(cad)
为你推荐
李宇春出席巴黎世家秀##巴黎世家大秀
钟楚红穿红裙捞金,皱纹很明显,但真实的衰老比整的年轻要漂亮!
带盆栽好大绿萝净化空气图片
效果理发剪刀png素材透明免抠图片-装饰效果
手绘卡通可爱乌龟
福狮守福古法黄金手镯约50克【图片 价格 品牌 报价
第262首 - 主啊差遣我 和弦简谱_简谱_乐谱吧
您正在访问第3页_梳妆台图片,梳妆台图片案例_2023装修效果图-齐家网