图知网
搜索
首页
热门推荐
图片分类
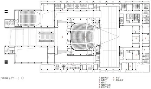
车库舞台层平面图观众厅席座层平面图休息厅层平面图观众厅楼座层平面
下载原图
相关图片
延安大剧院平面图
平和图书剧场,上海 / open建筑事务所
浅谈现代剧场声学设计
由aedas文化艺术团队设计的英国伦敦tara艺术剧院_07_首层平面图.jpg
滇之冠云南大剧院
意大利瓦雷泽市中心新剧院平面图-意大利瓦雷泽市中心新剧院第9张图片
为你推荐
欧洲贵族的女装情节
严浩翔刀马旦舞台
男生染发颜色大全98随便挑一款都能帅炸!
2000年泰山30拖拉机,车况好,就一车头. - 0.9万
拱桥构造及施工
猫和老鼠 - 寓言故事 - 故事365
皇太极一生妃嫔无数为何独独深爱海兰珠
这一件是著名的康熙遗诏,是博物馆里面唯一的一道复制品,原件在中国第