图知网
搜索
首页
热门推荐
图片分类
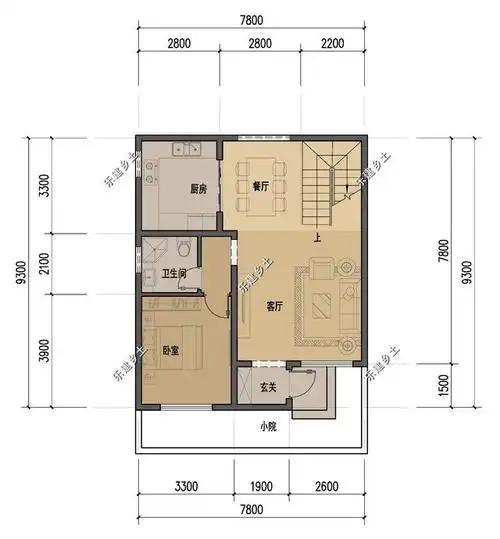
求农村80平米(8*10米)的自建房方案
下载原图
相关图片
三层8x10米现代风格别墅设计,上海市张先生项目展示
8x10米二层别墅, 造价经济, 布局很接农村地气, 家家都建得起
面宽8米造价13万起2018农村自建房这10套户型最适合咱老百姓
纯净简洁现代风格别墅设计,上海市张宅三层8x10米
8x10米自建房户型,一套适合农村人的现代别墅
8x10米三层普通农村建房设计图,小户型却有大格局 - 一层别墅设计图
为你推荐
费雯·丽 《乱世佳人》剧照
请教,三角梅不开花,掉叶子,怎么办?谢谢
lemmaid="8696176">发飙的蜗牛 /a>所著的东方玄幻小说《妖神记 sup
王一博深夜拍戏被警方调查,私生饭假报案?
刘宇宁##刘宇宁纯甄品牌代言人
幼儿园档案成长履历背景素材
粉色圆圈图片大全
手绘用平板电脑画画哪个软件好