图知网
搜索
首页
热门推荐
图片分类
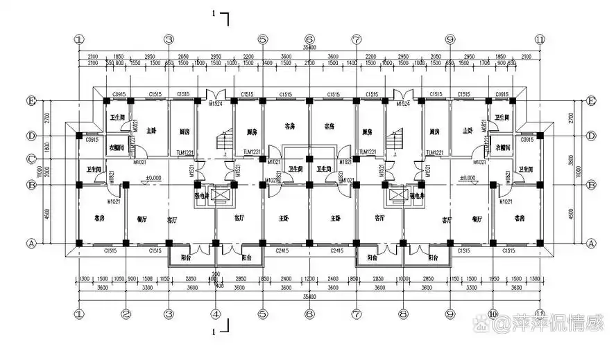
现代住宅楼建筑施工图
下载原图
相关图片
框架结构多层住宅楼
花苑小区商业住宅楼建筑施工图cad图纸
单元式住宅是指在多层,高层楼房中的一种
04 js-03 三层平面图.jpg
现代住宅楼建筑施工图
为你推荐
潘虹的个人资料(年过60岁单身无子的富婆女星,后悔不生孩子,为前男友"
阿房宫
swisse品牌海报
tt头像框 语音卡
美韩叫停警戒王牌联合军演美韩友谊向着塑料花方向发展
《贪玩的小水滴》奇妙的想象(三年级下)作文故事
自然式小庭院景观设计中植物的搭配
雷龙简笔画简单