图知网
搜索
首页
热门推荐
图片分类
140现代商铺装修装修效果图,***路服装店装修案例效果图-齐家网
下载原图
相关图片
小型服装专卖店平面图_装信通网效果图
没有3d效果图都不能没有的平面布局图专业合理的平面布局更能卖货!
呼和浩特市店平面图 – 设计本装修效果图
急求瓷砖店面装修设计图,效果图.
2022小型专卖店cad平面图大全_装信通网效果图
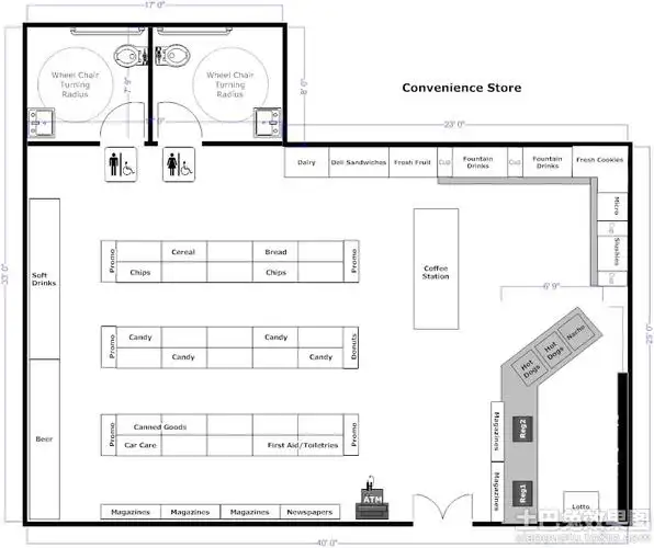
大型便利店装修平面图设计图片赏析--土巴兔装修效果图
为你推荐
盘点那些女明星头戴皇冠的造型,真的太漂亮了,来看看谁的造型惊艳了你
妨子什么意思妨子痣是什么意思
江湖龙虎斗:谢贤最"嚣张"的一部电影,邓光荣周润发都不如他优质
黄芪搭配养生有道!#上热门 #中药材 #滋补养生食材 #中药 - 抖音
别替他惋惜"同班不同命",杜俊泽的爆发只是时间问题
库里球衣 - 堆糖,美图壁纸兴趣社区
杨超越头像
sika61design新品藤编长凳