图知网
搜索
首页
热门推荐
图片分类
女儿墙防水节点详图
下载原图
相关图片
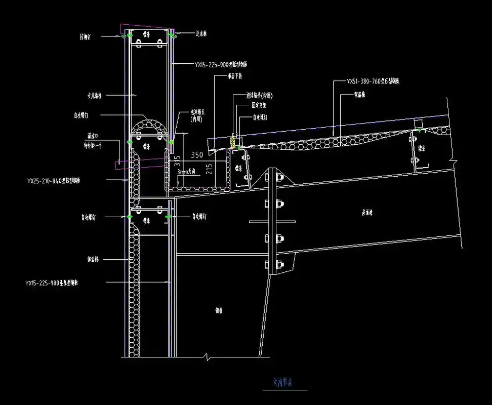
钢结构厂房天沟女儿墙做法.屋面采用钢丝网 保温棉 单板,墙面
女儿墙高度怎么看
一种既能疏排水又能防水的女儿墙施工节点
天沟女儿墙节点通用大样图施工图
女儿墙压顶怎么看
屋面卷材防水清单工程量女儿墙部分是否计算?
为你推荐
刘亦菲母亲:我这一生最正确的事情就是抛弃美国丈夫,带女儿回国
油画壁纸刘耀文
简约文字图片高清电脑壁纸
江之岛盾子
二人兄弟专属头像
海鲜花甲汤的做法_花甲汤怎么做
怀挡车的设计跟常见的旋钮档位或电子档位不同,它采用的是一个竖直
画一把折扇,送古风以解酷暑._高清图集_新浪网