图知网
搜索
首页
热门推荐
图片分类
挡烟垂壁如何设计?活动式和固定式有什么不同?设计高度很重要
下载原图
相关图片
挡烟垂壁工艺做法
挡烟垂壁如何设计活动式和固定式有什么不同设计高度很重要
挡烟垂壁如何设计?活动式和固定式有什么不同?设计高度很重要
定制批发挡烟垂壁 硅胶布固定式烟垂壁 挡烟垂壁厂家
内蒙古挡烟垂壁防火玻璃
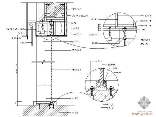
挡烟垂壁cad做法详图
为你推荐
韩媒曝kai郑秀晶分手 因繁忙行程结束一年恋情
宝可梦伊布数字油画diy填色画卡通动漫手工填充手绘卧室装饰挂画
阴阳师玉藻前#图片出自微博以及水印,转侵删.
林俊杰将故事写成我们无限延音编配
分享一些布丁狗头像
简朴田园风格室内卧室床上用品搭配效果图片
水果壁纸小清新可爱
官方旗舰阳台书柜书桌一体整墙带衣柜书台学习桌写字桌组合飘窗柜阳台