图知网
搜索
首页
热门推荐
图片分类
停车场平面图简笔画
下载原图
相关图片
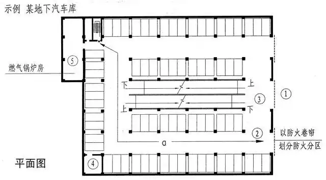
汽车库,修车库,停车场设计防火规范 gb50067
加设一块提示牌,印上整个停车区的平面图,并标注出类似宾馆内的房间号
停车场地坪工程系统解决方案
停车场交通设施规划方案(图)
南通兴东国际机场地下停车场平面指示图
停车场cad设计 3
为你推荐
两侧铲短油头:这是一种比较复古的两侧铲短男士发型,头顶的头发保留
多伦多风景(一)
而且我发现每个地方卖烟花的价格都不一样,北方离浏阳更远,烟花反而
201x年霸气好听的qq男生网名
iphone壁纸抖音壁纸图库
一件开衩t承包你一周穿搭140斤穿搭微胖女生显瘦穿搭直播
并起名为"企鹅岛项目",而这里将会是腾讯全球总部的所在之地,且从预览
可爱彩绘美甲