图知网
搜索
首页
热门推荐
图片分类
楼承板厚度问题
下载原图
相关图片
本人想建一个两层钢结构厂房,楼面用承重板做底板,上面浇200厚c25混
钢筋桁架楼承板顺向断开搭接缝处配筋
钢筋桁架楼承板开口式闭口式燕尾式规格齐全高强度
压型钢板楼承板详图免费下载 - 钢结构 - 土木工程网
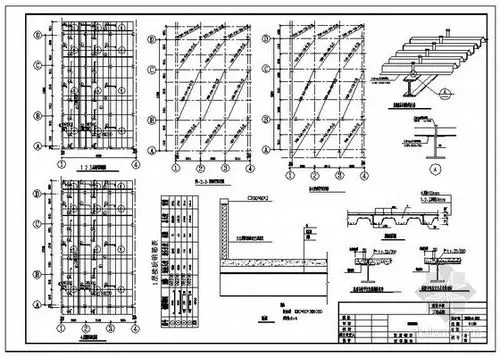
某楼承板节点构造详图-混凝土节点详图-筑龙结构设计论坛
楼板负筋不论钢筋级别,也就是一级二级三级钢都要做90度弯钩,使其支在
为你推荐
雅迪q6我的超级小可爱改装成功
惠州市合金电子有限公司(乡里去)拓展
小清新碎花,高清图片,电脑桌面-壁纸族
酷酷的二次元动漫男生头像,暗恋是一个人的兵荒马乱!
地皮(地衣),捡起来开心,洗起来麻烦,吃起来清香
风情万种的法式随性头像
二战德国军人之最, 一元帅在列_勋章
气泡背景_气泡对话框png素材-90设计_素材分享