图知网
搜索
首页
热门推荐
图片分类
自己动手也做一个这样精致的手工小制作工艺品吧
下载原图
相关图片
在厦门卖折纸工艺品怎么样 手工折纸大全-普车都
苏绣摆件手工双面绣刺绣台屏桌面摆台真丝纯手工艺品中国特色礼品好不
纯手工编制海草编织工艺品 - 抖音
石头做的工艺品幼儿园(石头画幼儿园简单小班)_手工miao
麻绳树枝装饰挂件原木墙面复古风创意个性圆盘壁饰手工工艺品成优惠券
天然海螺贝壳工艺品手工创意礼品花瓶摆件家居海螺
为你推荐
情侣壁纸『自截』 王爷不能撩堆糖 by:芒菓橙子
鹿晗 卡通佳洁士鹿鹿
蓬松的短发可用发带简单的束一下,或是编个简单的编发,用蝴蝶结装饰
兴奋的金发小女孩(小孩)在黑板前
dvd 我叫王土地 又名血战大河套 2碟装
一起画简单可爱的保温杯吧!
常吃芋头好处多,听我慢慢道来
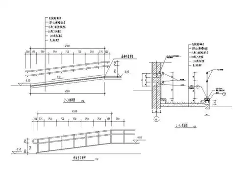
无障碍坡道大样