图知网
搜索
首页
热门推荐
图片分类
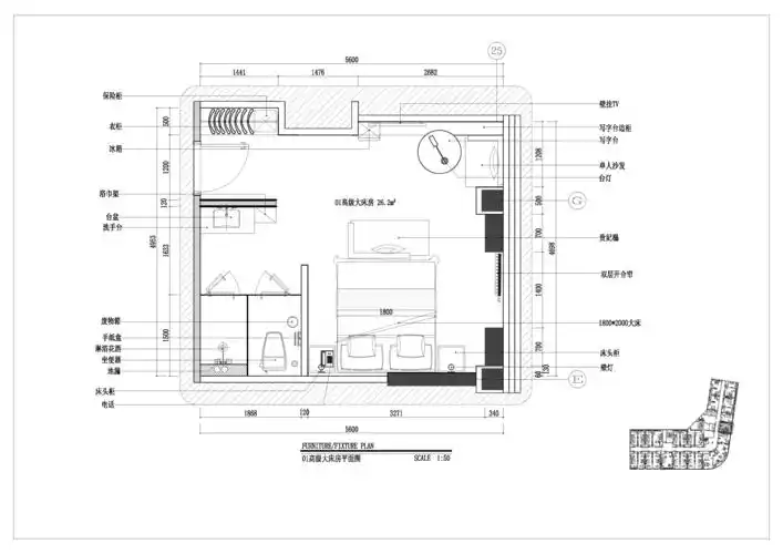
分享酒店大床间平面图资料下载
下载原图
相关图片
酒店大床房装饰施工图
标准大床房平面方案
深圳战略深化设计合作单位_豪华大床房平面布置图.jpg
[吉林]豪华商务酒店标准大床房装修图(含效果)
酒店客房平面
原创酒店客房详细平面布置图施工图下载【id:651627606】
为你推荐
成龙《尖峰时刻2》电影海报欣赏
守望先锋 dva 高清4k电脑壁纸壁纸
背部有如图的情况,是怎么回事,是不是皮肤病啊.急
东莞为什么要扫黄为什么东莞扫黄力度那么大
什么是超白缸?有什么特点?
一年级下册语文备课笔记20课咕咚
大象的尾巴
武汉新港线西延线有新进展,加速推进中