图知网
搜索
首页
热门推荐
图片分类
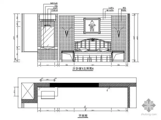
立面施工图-主卧立面图
下载原图
相关图片
卧室立面图
【主卧室床靠背立面图】
立面施工图-主卧立面图
90平米主卧室设计立面图
主卧立面图
分享现代卧室立面图资料下载
为你推荐
gucci古驰gucci男包男女款经典双g印花小号虎头斜挎包单肩包
【图】安志杰肌肉图欣赏 与甄子丹谈剧本 《特》发声明结束纠纷
生字田字拼音格可以打印共3页
孙越:从大象饲养员到知名相声演员,他到底靠什么逆袭成功?
公司起名简单大气的两字公司名字
手绘美食海报.前段时间设计了一组可爱的海报 (ps:以后混不 - 抖音
男士职业伴郎服新郎结婚礼服夏新款修身商务正装西服套装休闲西装
网评95后「最美古装小花」4:杨超越