图知网
搜索
首页
热门推荐
图片分类
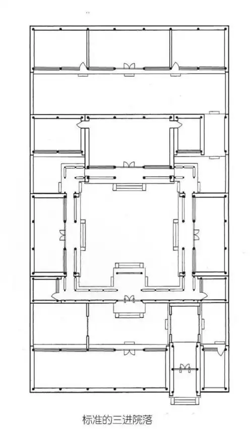
高家大院平面图
下载原图
相关图片
纯纯日记1想知道古代院落的构造及功能吗
个人对这种民居古宅很感兴趣相比于刚才游玩的乾隆行
从平面图上不难看出北京四合院在平面布局上以院为特征,大宅沿纵向
恭王府平面图7,带花园住宅封建社会的大户人家,有兄弟二人同居一处的.
假如云梦江氏穿越回民国,有一处宅第非常适合他们:东山雕花楼
中国五大民居ppt
为你推荐
欧美无边框镶钻雪地墨镜女辣妹y2k眼镜潮酷科技感赛博朋克太阳镜
时尚穿搭|白色裤子怎么配衣服?女白色裤子全部搭配图
可爱呆萌的简约动漫男生头像图片 高清阳光小众的卡通微信男头_动漫
圣岛季
四人闺蜜装图片不一样的闺蜜装图片
撒野光遇曲谱简易版_光遇撒野最简易版简谱_乐谱图集_曲谱下载网
绝世唐门——霍雨浩
王者荣耀:6把饮血剑吕布vs6件吸血书貂蝉,哪个吸血更厉害呢?