图知网
搜索
首页
热门推荐
图片分类
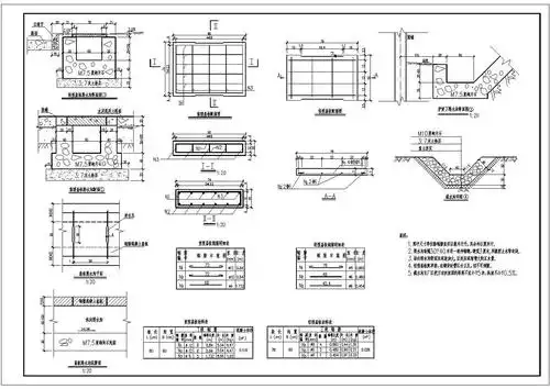
排水沟做法详图
下载原图
相关图片
[分享]土建排水沟图集资料下载
经典轻型及重型盖板排水沟结构设计cad全套施工图(甲级院设计)
排水沟节点详图(散水明沟,刮泥蓖子等)施工图下载【id:165462193】
排水沟做法
这个排水沟在图纸上范围在哪里有什么画呢
排水沟大样
为你推荐
赵薇人间,气场两米八.
甄嬛传61高能敬妃如何用一场谈话拿下抚养权
芦山地震图片特刊生命逝去的瞬间
女生背影头像#唯美温柔的女生头像 抖音搜索【神图壁纸】输入 - 抖音
刻画在灵魂深处的电视剧《在一起》
瘦字五行属什么 瘦字的含义
角色动作-堆糖,美好生活研究所
红烧茄子饭图片