图知网
搜索
首页
热门推荐
图片分类
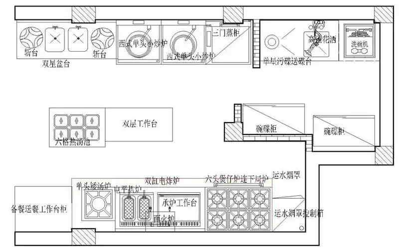
食堂餐饮店厨房设计.#厨房设备工程设计#厨具#厨房设备安装 - 抖音
下载原图
相关图片
食堂设计平面图:打造高效,舒适的用餐环境|厨房|餐位_网易订阅
四川,昆明酒店厨房设备应用重庆商用厨房设备设计安装四川厨房设备
由于面积有限,小饭店的厨房设计应该有合理的布局.
xxx餐馆厨房平面图
餐馆厨房设计原则和规范-一厨一帮
20-50人食堂厨房工程套餐3d效果图
为你推荐
铁板煎肉饭芝士焗饭鸡公煲
红衣古风写真
李嘉欣黎姿合影状态超好阔太闺蜜聚会可以让人变更美
男人最帅的发型超短发寸头 阳光短发帅哥男生发型图片,三款好看到爆的
心形流水灯只是搞完电赛多了点材料刚好够做个灯
《山海经》神兽之-白泽."家有白泽图,邪怪自消除".上古神话 - 抖音
上大下小 上中下相等 上中下不等 左右相等 左窄右宽 左宽右窄 左中右
切除的全胃标本,可见肿瘤巨大.