图知网
搜索
首页
热门推荐
图片分类
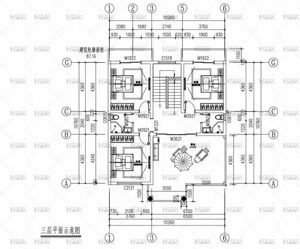
三层农村别墅设计图占地面积适中带车库露台造价低廉造型美观大气
下载原图
相关图片
农村三层三开间别墅
农村自建三间三层楼房设计图,带露台,经典实用
新农村三层简单带车库房屋设计图.doc 3页
三层三间农村房子图纸
三层豪华小面积别墅设计,农村气派的三层楼房 - 乡村住宅在线
现代三层超大气农村自建房设计及效果全套图 - 乡村住宅在线
为你推荐
圣诞节的那天,剧组全都休息,张震在片场里的ktv唱歌,突然被梁朝伟叫去
可可爱爱萌萌憨憨的男头合集 呆萌系的俏皮男头合集_男生头像_美头网
世界上最帅的男孩被封为世界最帅的小男孩
肩关节运动学ppt
虽然在来之前一直刷到过说宏村商业化太 - 抖音
男中长款2018新款韩版外套男装潮流加厚迷彩服 m08红色 165/m
荷花这样拍才有意境!
毛毛虫变蝴蝶