图知网
搜索
首页
热门推荐
图片分类
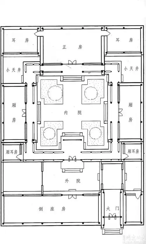
占地16x39一层自建四合院设计全套施工图
下载原图
相关图片
房山四合院
带你参观古往今来的四合院
【摘录写文参考】明代四合院的格局
仿古四合院
四合院平面图
整个平面以活动和自住划分空间,南侧和西侧组成的l形空间提供给客人
为你推荐
何炅一家三口图片何炅一家近照
北京市通州区安顺北里6号楼6层362房屋
意特陶900x1800无限连纹丨带你遇见家美好-建材网
独立团最6团长李云龙头像
陈漫的照片是什么水平是否已算是国内时尚摄影圈一姐
凹凸世界表情包
铝合金格栅幕墙定制 木纹铝格栅 粤艺佰
新番大贵族剧情简单俗套奈何我莱怀有盛世美颜