图知网
搜索
首页
热门推荐
图片分类
游丝一断浑无力,莫向东风怨别离.——贾探春《风筝》.jpg
下载原图
相关图片
87版红楼梦贾探春(东方闻樱 饰)#红楼梦 #87版红楼梦 - 抖音
红楼梦贾探春的最终结局 红楼梦未解之谜(2)
原创探春当家面临的3个难处现代管理者也会遇到
贾探春
《红楼梦》里贾探春的结局,是流放还是远嫁?
曹雪芹是将探春写进薄命司的人,对比其他人的结局,探春的结局应该不会
为你推荐
sales
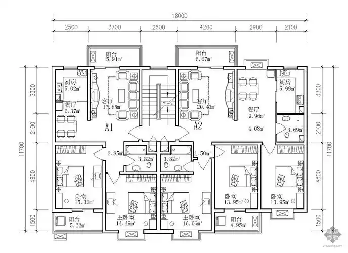
展开全部 平面图
深圳世界金融中心 罗湖区蔡屋围深南东路写字楼介绍
工业平板电脑在工业自动化控制中的主要作用
a series of illustrations exploring the boundarie
走遍福清系列三 @龙田福庐山
故宫全景图片
武汉地铁11号线二期三期铺轨装修列车实拍年底通车