图知网
搜索
首页
热门推荐
图片分类
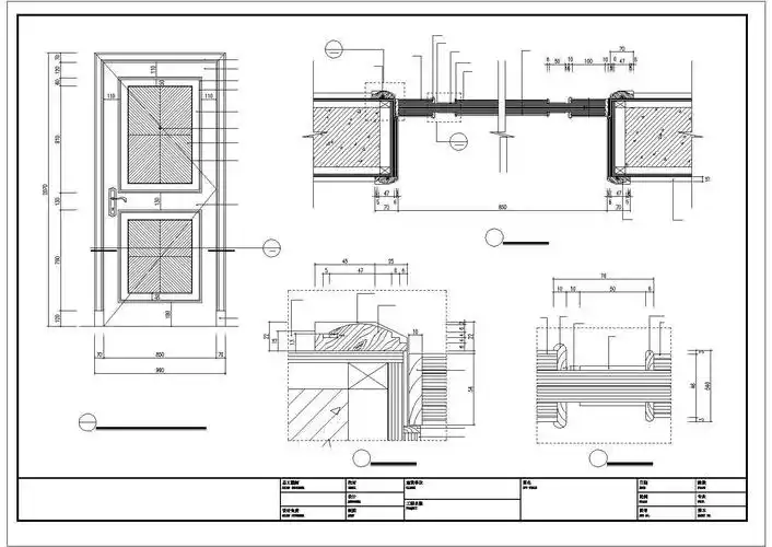
厨房玻璃门详图-室内节点详图-筑龙室内设计论坛
下载原图
相关图片
1-门节点-05_1.jpg
客房标准门大样-室内节点详图-筑龙室内设计论坛
极简隐形门施工细节节点图赶紧收藏起来
样板间卧室门节点详图大样施工图下载
某经典大门节点详图大样集锦cad图
总统套房门详图设计
为你推荐
阿里郎全新单曲《梦中女孩》暖愈上线唤醒你心底的梦中记忆_手机搜狐
杨幂思加图演绎断奏##杨幂staccato思加图全球代言人##跟着杨幂大片
《山中》这首诗的拼音是什么?
超大自制猫砂盆交作业来啦
右肩膀有胎记的男人命运(肩膀胎记图解大全)-命理-火灵运势
大工业生产作为资本主义的主流生产方式得到普遍发展,市场经济占据
2020年1日1练口算题卡二年级上册人教版参考答案第1页参考答案
广州麓湖公园聚芳园的蝴蝶兰花开艳丽,满园春色美丽淀放多彩!