图知网
搜索
首页
热门推荐
图片分类
九门口水上长城
下载原图
相关图片
九门口水上长城始建于北齐,扩建于明初,其与南部山海关方向的长城相接
系明朝所建,距山海关15公里,全长1704米,是明长城的重要关隘
【九门口水上长城】【山海关古城】游记 2018.04.06一07
10.3山海关《九门口水上长城》自驾游
南距山海关15公里,它是蓟镇长城上的一个关隘,原称"一片石关",自明末
山海关,老龙头,九门口水上长城一游!
为你推荐
188男团
新款夏季青春时尚百褶裙小个子短裙高腰显瘦aj裙子女带打底裤
冰焦糖拿铁咖啡一杯
继父在自然着色书为儿童卡通矢量插画野餐照片
手抄报模版,成语典故——滥竽充数.点赞关注收藏,内容仅供参考 - 抖音
电子琴入门练习曲两只老虎双手简谱简单好学
可帮忙代手写浪漫情书a4a5表白告白信道歉挽回分手告别信ins信笺
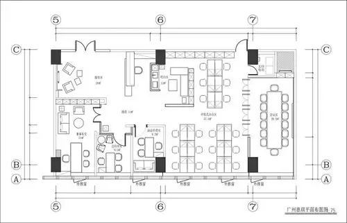
万元办公空间200平米装修案例_效果图 - 广州惠祺贸易有限公司办公室