图知网
搜索
首页
热门推荐
图片分类
歌唱祖国 #歌唱祖国正谱 #歌唱祖国五线谱 #歌唱祖国合唱 - 兑趑
下载原图
相关图片
歌唱祖国钢琴谱f调流行钢琴五线谱
复杂电子琴曲目 | 歌唱祖国(五线谱)
王莘 赵行道 - 歌唱祖国 合唱简谱f调钢琴五线谱正谱
歌唱祖国(简单版)-王莘钢琴谱-环球钢琴网
《歌唱祖国》四手联弹版,599 难度钢琴谱-tiancc-虫虫钢琴
歌唱祖国 谱友园地
为你推荐
中餐厅 赵丽颖
侧脸唯美头像女生
《第一财经》美女主持人戴刘菲,很久没有露面了,她的近况如何?
手机识别图片找图 - 实验室设备网
中年妈妈装春装外套洋气上衣50岁中老年人女装春秋装2021新款高贵
头像| 刘楚恬
抖音霸总林锡可能已经露脸了你发现了吗
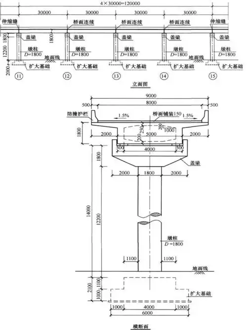
单向双车道,桥梁总宽9.0m,其中行车道净宽度为